Tendencias en acción: Movimiento Tiny House
01/01/2015 | davidcamacho |
Las casas diminutas, cada vez más populares en la última década, están apareciendo por todo el país a medida que más gente decide reducir su tamaño. A menudo construidas sobre plataformas de remolque y con un tamaño de entre 100 y 300 pies cuadrados, estas casas diminutas permiten un estilo de vida más sencillo y menos materialista, con una huella de carbono significativamente menor. Desde universitarios hasta jubilados, el atractivo de las casas en miniatura abarca todas las edades y cuenta con diseños innovadores, eficientes y hermosos.

MiniMotive Tiny House; Foto cortesía de Macy Miler
Echa un vistazo a estas impresionantes casas diminutas que maximizan tanto la funcionalidad como el estilo de vida.




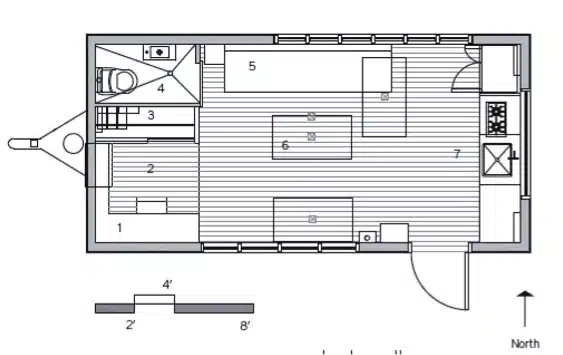
el proyecto TINY; Fotos cortesía de Alex Lisefski
el proyecto TINY
En esta serena casita de la California rural viven el diseñador web Alek Lisefski; su novia, Anjali; y su perra, Anya, como parte de su "proyecto diminuto: menos casa. más vida". Construida sobre un remolque de 2 por 2,5 metros, la casa cuenta con 10 ventanas y una puerta totalmente de cristal, lo que permite que el interior esté más conectado con el entorno exterior, y cuenta con pino pondersa sostenible teñido de azul y matado por escarabajos en todo el interior. Alek diseñó y construyó la casa él mismo por unos 30.000 dólares y ahora vende planos de construcción para que otros puedan construir su propia casa con las mismas especificaciones. Para más información sobre la casita de Alex, visite http://tiny-project.com.




hOMe; Fotos cortesía de Andrew y Gabriella Morrison
Casa pequeña hOMe
Diseñada y construida por Andrew y Gabriella Morrison, hOMe es una casa diminuta de 221 pies cuadrados montada en un remolque de cubierta plana en Ashland, Oregón. Creada para funcionar sin conexión a la red eléctrica, hOMe se construyó y amuebló por 33.000 dólares en sólo cuatro meses. Con todo lo necesario, desde una cocina completa con electrodomésticos de tamaño convencional hasta un dormitorio principal abuhardillado, pasando por una gran cantidad de espacio de almacenamiento, hOMe es una cómoda residencia adecuada para vivir a tiempo completo. Sus altos techos inclinados y paredes blancas dan a la estrecha casa la ilusión de espacio, mientras que el acristalamiento horizontal permite disfrutar de luz natural y vistas en todas partes.




The Elm; Fotos cortesía de Tumbleweed Tiny House Company
Compañía Tumbleweed Tiny House
Una empresa que está en el corazón del movimiento es Tumbleweed Tiny House Company, que no sólo imparte talleres por todo el país sobre cómo construir casas diminutas, sino que también fabrica y vende planos y casas ya construidas. El bungalow que se muestra arriba, llamado The Elm, tiene 163 pies cuadrados de espacio habitable que incorpora un montón de almacenamiento y un altillo para dormir. Los precios de una casa diminuta empiezan en menos de 40.000 dólares, y están totalmente equipadas con electricidad y fontanería. Para más información, visite http://www.tumbleweedhouses.com.




Minim House; Paul Burk Photography
Casa mínima
Una de las últimas casas pequeñas que nos ha llamado la atención es la Minim House, un ingenioso diseño que aprovecha al máximo el espacio. Esta microvivienda móvil basada en un remolque puede funcionar con o sin conexión a la red y cuenta con comodidades que a menudo se asocian con una casa más grande. En sus 210 metros cuadrados, el interior de planta abierta ofrece una generosa cocina de 3 metros de ancho, una mesa multifunción, taburetes, un sofá con capacidad para cinco personas, una pantalla de proyección gigante para entretenimiento, una cama desplegable (en lugar de un altillo), una zona de oficina, un cuarto de baño y una estantería con capacidad para más de 150 libros. La construcción sencilla y los materiales estandarizados también permiten que un equipo de sólo dos personas construya la casa en sólo cinco días. Los interesados pueden adquirir los planos de la casa en http://minimhomes.com.




Fotogramas de Tiny: A Story About Living Small; Fotos cortesía de SpeakThunder Films
TINY: Una historia sobre vivir en pequeño
"TINY: A Story About Living Small" es una película que sigue el épico viaje de un hombre hacia la vida diminuta y ha ayudado a impulsar el estilo de vida de las casas diminutas al reconocimiento nacional. La película narra la historia de Christopher, un hombre de 30 años sin experiencia previa en la construcción que, junto con su novia Merete, se propone construir una casa diminuta. La historia no sólo gira en torno a Christopher, que también dirige la película, sino que proporciona un contexto para el movimiento de las casas diminutas, incluyendo entrevistas con luminarias de las casas diminutas como Jay Shafer, Deek Diedricksen y Tammy Stroebel, así como una serie de personas "normales" que han optado por vivir en casas diminutas, como Dee Williams, de 84 pies cuadrados. Aunque se habla del valor estético y de diseño de vivir en una casa pequeña, la razón principal que la mayoría de la gente da para su elección es la independencia económica. Para ver un avance u obtener más información sobre el documental, visite http://tiny-themovie.com.